Резервуары и металлоконструкции
от завода-производителя

Доставка по всей России!

slide-s02

Резервуар вертикальный РВС 30 м3

Резервуар вертикальный РВС 30 м3

 

Резервуар вертикальный РВС 30 м³ используется на различных объектах народного хозяйства, в нефтедобывающих, перерабатывающих отраслях, пищепроме и иных направлениях промышленного производства. Основное предназначение – накопление и сохранение технических и эксплуатационных параметров различных видов жидкостей.

Завод РиНМ изготавливает и реализует резервуары типа РВС объемом 30 м³ (вертикального наземного размещения) и обеспечивает:

- соответствие продукции требованиям ТУ и ГОСТ;

- оперативную доставку к месту применения;

- профессиональный шефмонтаж;

- выгодную цену.

Стандартизация

Основной нормативно-технический документ, в соответствии с которым осуществляется изготовление и эксплуатация РВС – ГОСТ 31385, который и установил требования по таким направлениям, как разработка проекта,, практическое производство и монтажные работы, а также пусконаладка, испытания.

Другие важные НТД приведены ниже:

Параметр

Документ

Номер

Общие техусловия, применяемые к  металлопродукции

ГОСТ

1050

Сортамент сортового стального проката

2590

Контроль качества сварных соединений

3242

Марки сталей и сплавов

5632

Нагрузки и воздействия

СП

СНиП

20.13330

2.01.07

Классификация в зависимости от объема

ГОСТ

27751

Соответствие типа резервуара. Определяемого по температуре вспышки

6356

 

Нормируемые условия

Характеристика

Значение

Способ установки

Над уровнем земли

Допустимая плотность

До 1600 кг/м³

Т корпуса

- минимальная

- максимальная

 

≤ + 160°С

- 65°С (не ниже)

Р газов внутри корпуса, Па

 5000

Уровень сейсмоопасности

9 баллов (предел)

 

Основные эксплуатационные параметры РВС 30 м³

Показатель

Результат

V nom,

30,0 м³

Плотность, кг/ м³

1000

Материал изготовления

Сталь легорованная

Эксплуатационный ресурс

20 лет

Наличие теплообменника и изоляционного слоя

По согласованию с заказчиком

Высота емкости, м

3,14

Диаметр резервуара, м

4,61

 

Конструктивные особенности

  • Поставка резервуаров РВС 30 м³ осуществляется в комплектности. Обеспечивается полная готовность к вводу оборудованию в эксплуатацию. Никаких дополнительных мероприятий и приобретения запасных частей не требуется.
  • Монтаж на месте, выбранном собственником, осуществляется на заранее подготовленное бетонное основание.
  • После закрепления и фиксации корпуса осуществляется комплекс пусконаладочных работ.
  • Емкость цельносварная. Это означает, что крыша приваривается к корпусу изделия непосредственно на предприятии-изготовителе.
  • В конструкции резервуара предусмотрено наличие технологических люков, используемых при монтаже технологического оборудования, наполнения емкости и слива рабочей жидкости.

Область применения

  • Энергетика.
  • Строительство.
  • Транспортная инфраструктура.
  • Оборудование пожарных емкостей.
  • АЗС.
  • Сфера военно-промышленного комплекса.
  • Морские порты, железнодорожные (грузовые) терминалы.
  • Сельское хозяйство.

При выборе резервуара вертикального емкостью 30 м. куб, следует принимать во внимание особенности технологического процесса, а также специфику условий монтажа и повседневной эксплуатации.

Преимущества РВС-30

  • Длительный срок службы.
  • Простота обслуживания.
  • Надежность.
  • Коррозийная стойкость.
  • Компактные размеры.
  • Высокая вместительность.

А еще – доступная цена при заказе резервуаров вертикальных в ГК МеталлЭнергоХолдинг!

Простое решение

Чтобы купить Резервуар РВС 30 м³ достаточно позвонить менеджеру компании. Опытный специалист поможет согласовать все важные моменты и предложит лучшие условия для взаимовыгодного сотрудничества.

 

Обращайтесь!

Рассчитать стоимость или купить "Резервуар вертикальный РВС 30 м3" от Завода Резервуаров и Негабаритных Металлоконструкций вы сможете всегда в короткие сроки.

Широкая номенклатура изготавливаемая нашим предприятием ценится надежностью конструкций и высокими техническими характеристиками, мы изготавливаем как габаритные так и негабаритные металлоконструкции и прочие металлоизделия,  емкости, сосуды, аппараты.

Весь штат нашего предприятия – это высококвалифицированные специалисты !

Собственный цех горячего оцинкования , позволяет произвести антикоррозионное покрытие согласно нормативам по ГОСТ 9.307-89, а так же покрытие от коррозии и старения по ГОСТ 9.302-88, ГОСТ 9.308-85, ГОСТ 9.301-86, 9.306-85, СП 28.13330.2012.

Так же мы всегда готовы предоставить услуги по огнезащитной обработке и конструктивной огнезащите по ГОСТ Р 53295-2006

РазработкаКМД– от 1-го дня.

Перевезем, доставим все необходимые металлоконструкции, комплектующие и емкости до Вашего объекта в любой город России!

Для оформления заказа и определение ценовой политики в Ижевск на "Резервуар вертикальный РВС 30 м3" Вам достаточно набрать по телефону +7 (341) 226-92-82 или отправить заявку на наш электронный адрес izhevsk@rezervuar-met.ru

Преимущества

  • Цены от производителя

  • Гарантия качества

  • Комплектация объектов под ключ

  • Производим монтаж/демонтаж

  • Оперативная доставка в любой регион

  • Быстрые сроки поставки,
    четкое соблюдение сроков

  • Персональный подход

  • Гарантийное обслуживание

  • Разработка КМД от 2-х
    рабочих дней

  • Составление КП от 15 минут

Подготовим коммерческое предложение
с учетом ваших индивидуальных технических требований

Скачать опросный лист

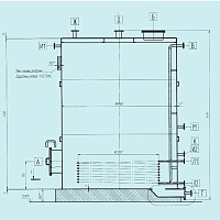
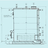
Технические характеристики

ОБОЗНАЧЕНИЕ

НАЗНАЧЕНИЕ

А

люк-лаз

Б

люк световой

В

вход продукта

Г

выход продукта

Д

воздушник

Ж

для пропарки

И1

для датчика верхнего уровня

И2

для датчика нижнего уровня

К

для датчика температуры

Л1

вход пара

Л2

выход конденсата

М

для датчика давления

 

Чертеж

Чертеж Резервуар вертикальный РВС 30 м3

Доставка

Чтобы избавить Вас от необходимости поиска логистической компании, мы готовы взять на себя работу по осуществлению доставки оборудования на Ваш объект.

Преимущества осуществления доставки при помощи нашей компании:

  • Работа только с проверенными временем подрядчиками
  • Четкое соблюдение сроков
  • Разумные цены
  • При необходимости, груз можно застраховать
  • Стоимость услуги рассчитывается индивидуально, в зависимости от региона доставки и объема груза.

Свяжитесь с нашим менеджером по телефону или через форму сайта и мы подготовим для Вас расчет.

Скачать опросный лист