Доставка по всей России!
Резервуар стальной РГС-50 м³ – это цельносварная емкость, имеющая форму горизонтально расположенного цилиндра с плоскими или коническими днищами. Изготавливают из конструкционной низколегированной стали, нержавеющего проката. Предназначен для наземного и подземного хранения жидких горюче-смазочных материалов, воды и других неагрессивных сред. Применяют на автозаправочных станциях, в сельских и коммунальных хозяйствах, на промышленных предприятиях.
Завод Резервуаров и Негабаритных Металлоконструкций производит резервуар стальной РГС-50 в стандартном исполнении и под заказ.
Изделия изготавливаются следующих видов:
| Модель резервуара | Применение |
| РГСП-50 | Монтаж в котловане |
| РГСН-50 | Установка на поверхности грунта |
| РГСд-50 | Наличие двойной стенки |
Все вышеуказанные модели могут иметь плоские, сферические, конические днища. Каждая конструкция уникальна, имеет свои преимущества, возможности, технические параметры.
Резервуар стальной РГС-50 м³ изготавливают по ГОСТe 17032-2010, ГОСТ Р 34347-2017.
В стандартном исполнении изделие имеет следующие размеры:
| Наименование продукции | Длина изделия, м | Наружный диаметр, м | Внутренний диаметр, м | Высота конструкции, м | Длина цилиндрической части, м | Толщина стенки, мм |
| РГСП-50 | 10,1 | 3 | 2,76 | 6,3 | 9 | 4-10 |
| РГСН-50 | 5 |
При транспортировке высота резервуара всего 3,4 м.
Завод Резервуаров и Негабаритных Металлоконструкций располагает собственным конструкторским бюро, производственными мощностями с высокоточным оборудованием, квалифицированными специалистами. Это позволяет рассчитать и сделать изделие любых размеров в соответствии с требованиями заказчика и нормами государственных стандартов. Каждый этап производства происходит под присмотром сотрудников отдела внутреннего контроля. Все изделия имеют сертификаты качества.
Для изготовления РГС-50 используют сортовой и листовой металлопрокат из разных сплавов.
Наиболее востребована сталь следующих марок:
| Марка стали | Назначение емкости |
| Ст3 | Эксплуатация при температуре не ниже -40°C |
| 09Г2С | Эксплуатация при температуре не ниже -60°C |
| Антикоррозионная сталь 12Х18Н10Т | Хранение питьевой воды, пищевых продуктов, агрессивных жидкостей |
Толщина стенок 4-10 мм зависит от технических параметров создаваемой емкости, сферы применения, способа монтажа, других факторов. При изготовлении каркаса используют ребра жесткости, ленточные фиксаторы. Наружную поверхность обрабатывают антикоррозионным слоем, используют горячее оцинкование, грунтовку, битум, порошковое покрытие, лакокрасочные материалы, полимеры.
Резервуар стальной РГС-50 м³изготавливают по ГОСТу 17032-2010.
В стандартном исполнении изделие имеет следующие технические характеристики:
| Наименование продукции | Номинальный объём, м³ | Температура рабочей среды, ºC | Плотность рабочей среды, кг/м³, не больше | Сейсмичность, баллы, не больше | Срок эксплуатации, лет |
| Резервуар РГС-50 | 50 | от -65 до +90 | 1300 | 7 | 10 |
Примечание:
Площадь поверхности теплового обмена 13 м². Дополнительные технические характеристики уточняйте у менеджера при оформлении заказа.
При изготовлении резервуара РГСд-50 с двойной стенкой расстояние между листами составляет не меньше 4 мм. Этот зазор заполняют азотом, тосолом, иной технологической средой. Наличие такой полости позволяет поддерживать рабочую среду в заданном температурном режиме. Кроме этого данный вид конструкции имеет повышенную надежность. В случае протечки внутренней емкости рабочая жидкость находится внутри наружной оболочки. Окружающая среда не загрязняется.
Для применения резервуара при отрицательной температуре окружающего пространства используют теплоизоляцию, защитный кожух, обогревающее устройство. Система подогрева выполняется на основе нагревательного кабеля или водяного контура. Выбор зависит от вида рабочей среды, места расположения емкости.
Резервуар стальной РГС-50 м³ изготавливают из разных марок сталей. Используют в следующих направлениях:
Конструкция РГС-50 предусматривает наличие одной или нескольких герметичных между собой емкостей. При использовании резервуара с внутренними перегородками в каждой емкости можно хранить отдельную жидкость. Это экономит занимаемое пространство, увеличивает функциональность изделия.
Завод Резервуаров и Негабаритных Металлоконструкций предлагает купить резервуары стальные РГС-50 м³ в разных модификациях по цене изготовителя. Продукция соответствует заявленным характеристикам, имеет полный пакет сопроводительных документов. Нами учитываются все требования заказчика. Допускается выбор исходного материала, корректировка размеров, установка дополнительных приборов и оборудования. Наши изделия имеют простую конструкцию, безопасны в применении.
Мы производим запасные и комплектующие части на изготовленную продукцию в течение всего срока эксплуатации. Выполняем доставку к месту назначения, установку, технологическое обслуживание, ремонт, модернизацию. Для оптовых покупателей, постоянных деловых партнеров предусмотрена гибкая система скидок. Подробности у менеджера.

Цены от производителя
Гарантия качества
Комплектация объектов под ключ
Производим монтаж/демонтаж
Оперативная доставка в любой регион
Быстрые сроки поставки,
четкое соблюдение сроков
Персональный подход
Гарантийное обслуживание
Разработка КМД от 2-х
рабочих дней
Составление КП от 15 минут
Подготовим коммерческое предложение
с учетом ваших индивидуальных технических требований
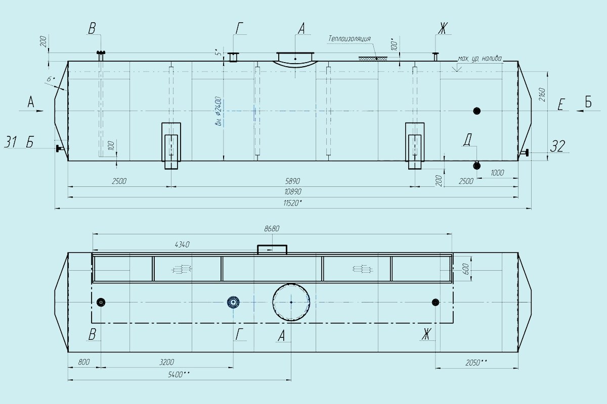
| ОБОЗНАЧЕНИЕ | НАЗНАЧЕНИЕ |
| А | люк |
| Б | линия выдачи |
| В | линия наполнения |
| Г | для уровне мера |
| Д | сливная труба |
| Е | труба переливная |
| Ж | линия дыхательная |
| З1, З2 | патрубки под ТЭН |
Чтобы избавить Вас от необходимости поиска логистической компании, мы готовы взять на себя работу по осуществлению доставки оборудования на Ваш объект.
Преимущества осуществления доставки при помощи нашей компании:
Свяжитесь с нашим менеджером по телефону или через форму сайта и мы подготовим для Вас расчет.